El local de unos 60 m2 era utilizado antiguamente como almacén, se solicitó licencia al Ayuntamiento para cambio de uso, y se convirtió a vivienda. Estaba en mal estado de conservación ya que llevaba años sin utilizarse, por lo que requería de una reforma integral.

Estado inicial
Se ha procedido a renovar la instalación de electricidad y fontanería y a dotar al local de un nuevo saneamiento y una instalación de Tv que no poseía y una pre-instalación de aire acondicionado para poder instalarlo en un futuro.

Vista general de la Cocina
Como el local no poseía instalación de gas, se ha realizado una acometida nueva desde la instalación general del edificio para poder dotar a la vivienda de un sistema de calefacción por gas. Se ha colocado una caldera Junkers compact que tiene unas dimensiones más reducidas y así poder esconderla dentro de uno de los muebles altos de la cocina.

Vista general del Loft
La cocina combina muebles blancos y negros con una encimera de silestone blanca tanto para la cocina, como para la mesa central que tiene dos alturas.

Sistema de apertura de suelo para almacenaje
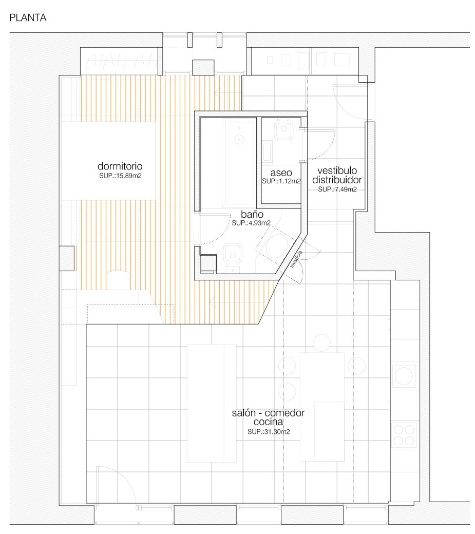
Tanto la distribución como el mobiliario del mismo realizado a medida por Gahecor han sido diseñados por los Arquitectos Fermina Garrido y Alejandro García. Gracias a la altura del local se ha aprovechado a levantar el espacio del dormitorio para poder generar un trastero debajo de la cama. Los muebles han sido realizados a medida para aprovechar al máximo el espacio y utilizando la misma madera de bambú del suelo para conseguir una gran armonía.

Realizando en obra muebles a medida
Se ha realizado un núcleo central de ladrillo y se ha pintado en esmalte blanco satinado para dar luminosidad al conjunto, a la vez que sirve para albergar el baño y el aseo ya que la vivienda es tipo loft y no dispone de tabiques.

Vista desde el dormitorio
El suelo combina la calidez de la madera de bambú en la zona de noche, con la baldosa porcelánica en la zona de estar y cocinar.

Vista de la escalera
La carpintería exterior ha sido realizada en aluminio con RPT (rotura puente térmico) y para conseguir un mejor confort y un mayor ahorro en el consumo de gas y electricidad. El vidrio elegido es un vidrio Climalit mateado ya que al ser un bajo nos permite tener un mayor grado de intimidad.

Vista general del Loft
El resultado final es la conversión de un antiguo almacén en un loft moderno y funcional.

¿quieres ver más sin tabiques?
«Reforma de apartamento en buhardilla»

[…] “Reforma de Loft” […]
[…] Apartamento tipo Loft […]
[…] “Reforma de Loft” […]
Interesante intervención!