La vivienda de 1930, situada en el ático del edificio está ubicada en el barrio de Argüelles, perteneciente al distrito Moncloa – Aravaca de Madrid. La vivienda requería de una reforma integral, ya que se encontraba con un aspecto antiguo, y requería una nueva distribución para conseguir dotarla de unos espacios más amplios y confortables.

Estado inicial
La vivienda, rehabilitada y reformada integralmente por Gahecor, se demolió completamente, ya que necesitaba un cambio completo de distribución y una renovación completa de todas sus instalaciones, al tratarse de un edificio de los años 30, de estructura de madera, ha sido necesaria la rehabilitación de parte de la estructura y del forjado para garantizar su estabilidad estructural.

Vaciado del forjado de madera para su rehabilitación
Para ver la rehabilitación del forjado pulse aquí
El arquitecto, Alejandro García, ha buscado realizar una vivienda moderna y funcional, sin perder la esencia de encontrarse en un edificio antiguo, para ello se han combinado los materiales antiguos, dejando vista parte de la estructura de madera antigua de la vivienda, y los antiguos ladrillos, con madera nueva y hormigón.

En el diseño de la misma, se ha buscado el aprovechamiento máximo de la vivienda, ya que el piso tiene unas dimensiones reducidas, apenas 60 m2, y gran parte de estos metros cuadrados, se encuentran abuhardillados.

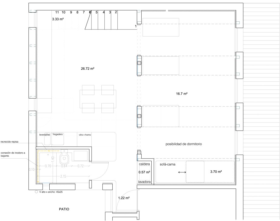
Plano de planta, estado reformado.
Ya que la vivienda se encuentra en el ático del edificio, se han realizado unas mejoras en el aislamiento para mejorar el confort de la misma, y se han cambiado las carpinterías por unas de aluminio con Rpt, y las ventanas del tejado por unas ventanas Velux manuales y motorizadas en función de la accesibilidad de las mismas. Se ha dotado a la vivienda de un nuevo sistema de calefacción de gas, con una caldera de condensación.

Planos de sección
Para el suelo, se ha decidido dejar vista la solera de hormigón, que le da un aspecto industrial, esta solera se ha pulido para quitar las imperfecciones más grandes, y se ha barnizado con barniz de poliuretano para tapar los poros del cemento.

Vista inferior
Se ha utilizado madera clara y se ha pintado, tanto paredes como vigas superiores de blanco para ganar en luminosidad.

Vista superior
El resultado de esta pequeña buhardilla, es una vivienda funcional, con un gran espacio central, y sin tabiques, que da una gran sensación de amplitud.

Estado reformado
¿quieres ver más sin tabiques?

[…] “Reforma de apartamento en buhardilla” […]
[…] “Reforma de apartamento en buhardilla” […]
[…] “Reforma de apartamento en buhardilla” […]